--   |  设为首页

帮忙装修网

中山

[切换]

中山刚需二房小户型改三房,阳台秒变阳光书房

来自:中山帮忙装修网 日期:2022-08-05 11:50:47 211515 次 分享到:
导读:
77㎡刚需房,改造出三室一厅的格局。中山帮忙装修网公司分享。

今天中山帮忙装修网公司分享的案例是77㎡现代简约风家居,两房改三房,玩转空间利用。77㎡刚需房,改造出三室一厅的格局。家的设计,没有千篇一律,从业主的角度出发,细节处处彰显用心。

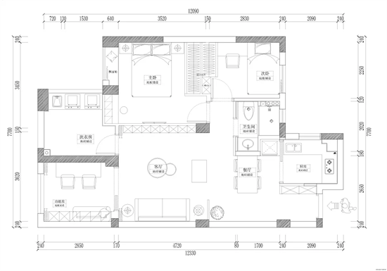
户型图

微信图片_20220804165848.png

使用面积77㎡,两房两厅结构,主要问题是入户区域狭窄,客厅采光不足,储物空间不够等。

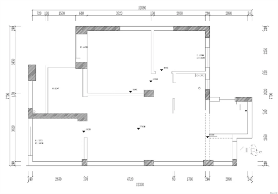
微信图片_20220804165852.png

根据业主需求,改造如下:

1、借用卫生间空间,冰箱外移,扩大厨房的操作区域;

2、改变厨房的开门方向,增加了空间的光线和动线的连贯性;

3、客厅外阳台改为书房,同时兼做客房,实现三房的需求。

玄关

微信图片_20220804165855.png

原入户空间狭小,设计师改变厨房门方向,加强空间光线和动线的连贯性。

微信图片_20220804165858.png

入户处设计鞋柜,满足收纳的需求。中间镂空嵌入灯带,打造回家的仪式感。

客厅

微信图片_20220804165900.png

原客厅狭小,采光不足。设计师改变了主卧和客厅的隔墙位置,保证客厅的空间和采光。

微信图片_20220804165903.png

蓝色沙发靠墙摆放,沙发墙挂画错落有致。木质茶几和边柜设计,小巧灵活,整体配色很温馨。

微信图片_20220804165905.png

客厅和阳台书房采用玻璃隔断,三联动玻璃门,大大引入自然采光,空间通透明亮。

微信图片_20220804165907.png

电视机采用嵌入式设计,一整墙的柜子,既不占用额外空间,观看距离也更加合适。

餐厅

微信图片_20220804165909.png

餐厅设置在厨房出口处,充分利用空间,而且缩短餐厨距离,动线更流畅。

微信图片_20220804165911.png

原木餐桌椅休闲又舒适,搭配线性吊灯,营造良好的用餐氛围。

厨房

微信图片_20220804165914.png

原厨房面积小,设计师借用部分卫生间空间,并且将冰箱外移,扩大厨房空间。

微信图片_20220804165916.png

“U”型的橱柜布局,收纳充足,动线流畅,烹饪也更加方便。

主卧

微信图片_20220804165918.png

主卧以白色调为主,搭配原木家居,温馨又耐看。飘窗提供大量采光,临窗设计全身镜,方便整理着装。

微信图片_20220804165921.png

主卧衣柜采用嵌入式设计,收纳空间充足。床头柜台面摆放小夜灯,方便晚上起夜。

微信图片_20220804165923.png

通过主卧与阳台的结构改造,嵌入梳妆台组合柜,搭配灯光设计,精致又实用。

书房

微信图片_20220804165925.png

阳台改为书房,三联动的玻璃移门引入采光,空间通透明亮又大气。

微信图片_20220804165927.png

书房作为一个备用空间,既方便业主办公学习,也可以充当临时客房,一举两得。

儿童房

微信图片_20220804165930.png

次卧改为儿童房,上下双层床设计,大大增加空间的利用率。

微信图片_20220804165932.png

除此之外,儿童房还布置衣柜、书柜、书桌等,学习和休息都兼顾。

卫生间

微信图片_20220804165934.png

干湿分离提高卫生间的使用效率,黑色门框增加空间的厚重感,高级又时尚。

微信图片_20220804165936.png

洗手台外移,长方形的镜子除了方便梳洗,还有增大视觉空间的效果。

装修预算不够?快来申请装修贷款!月息低至2.5厘。帮忙装修网为解决业主的装修资金难题,特与银行合作推出“装修贷”,一站轻松办理:18824725983 吴先生

长按二维码关注"帮忙装修网",了解更多装修资讯↓↓↓

或拨打免费热线:13822775923

已成功招标53521